Italiano
296.000 €

La casa sul promontorio

Villa in vendita • Valsamoggia (Savigno)
VALSAMOGGIA, zona in montagnosa (circa 700mslm)
Valsamoggia – Il promontorio che guarda il mondo
Ho scritto “zona montagnosa” con convinzione, perché il comune di Valsamoggia è davvero vasto e variegato: oltre 170 km² che spaziano dalla pianura fino a quasi 800 metri di altitudine.
Siamo a quasi 700 metri sul livello del mare. Ok, ho esagerato di qualche metro, ma siamo comunque in un punto che domani sarà considerato una fortuna: qui si respira bene e c'è fresco anche quando in città si boccheggia sotto i 40 gradi.
Siamo nei pressi di Montepastore, a 25 minuti da Bologna...
L’asfalto finisce, e dopo qualche centinaio di metri di strada ghiaiata, sulla sinistra si apre il sentiero che porta alla casa. Mi fermo un attimo. Davanti a me, una sella montuosa attraversata dal crinale su cui corre la stradina, con campi arati su entrambi i lati. In fondo, sulla destra, proprio sul cucuzzolo, si stagliano la casa con i comignoli a palla e la stalla.
Il silenzio è totale. Si sente solo il vento e l’aria fresca che scende dalla montagna verso la valle. La casa padronale, in sasso, è posizionata su un poggio che domina tutto il paesaggio sottostante. Di fianco, parallela alla sella, corre un’altra cresta che ospita, quasi per caso, una costruzione molto simile: una sorta di gemella architettonica.
Parcheggio nel campo, lontano dalla casa. Non voglio rovinare l’atmosfera. C’è qualcosa di sospeso, quasi onirico, che merita rispetto.
Scendo la stradina, solo il suono ritmico dei miei passi...
Panorama, quiete e aria buona...
Qui sul cucuzzolo il panorama è aperto e infinito, la tranquillità è totale, e c’è un venticello fresco che rende il caldo raro e sopportabile. Il proprietario lo dice chiaramente: “Qui si sta bene, davvero.”

Un complesso rurale autentico
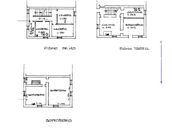
La proprietà è un ex complesso agricolo composto da:
- Una maestosa casa padronale in sasso, con fascino da vendere.
- Una ex stalla oggi usata come attrezzeria e deposito.
- Una casetta più recente in mattoni.
- Un’altra attrezzeria più piccola, con due cantine sottostanti.
- Un forno barbecue esterno.
- Tanto terreno e, in basso, una sorgente naturale (che di questi tempi è una vera ricchezza).
e....
.... Un piccolo difetto… che diventa un’opportunità
La casa padronale è stata costruita in due fasi:
La parte storica e affascinante, solida e ben fatta.
Una aggiunta più recente, costruita in economia, oggi lesionata e difficilmente recuperabile.

Ma sai cosa?
È la parte meno bella, quella con meno fascino.
I tecnici consigliano di demolirla e, volendo, ricostruirla. I sassi della muratura li riutilizzerai per sistemazioni esterne: vialetti, muretti, dettagli rustici.

Anche la casetta moderna davanti alla casa principale è lesionata. E sai che ti dico?
Per fortuna!
No, non sono matta è che eliminandola, ti si apre un panorama spettacolare dalla casa padronale, e potrai realizzare una terrazza, una tettoia, un pergolato… qualcosa di davvero speciale.

In sintesi
Una casa storica con carattere, una sorgente, tanto terreno, edifici da recuperare o reinventare, e un panorama che ti lascia senza fiato.
Un luogo dove vivere bene, respirare, e costruire il tuo rifugio.

Proprio quello che stavi cercando!
Dimenticavo! Le case vicine sono tutte abitate da residenti: collaborazione e controllo di prossimità garantito!

Le informazioni, immagini e planimetrie fornite hanno esclusivamente finalità indicative e non rappresentano elementi vincolanti o contrattuali.
La geolocalizzazione dell'immobile su Google Maps potrebbe risultare imprecisa.
Tutti i diritti sono riservati.
Caratteristiche principali
Codice
1367
Città
Valsamoggia (Savigno)
Categoria
Villa
Prezzo
296.000 €
Locali
13
Camere
8
Bagni
3
Mq
428
Box
1
Posti auto
2
Mq Giardino
70000
Balconi
1
Classe energetica
G
229,47
Stato Immobile
Da Ristrutturare
Grado
Medio
Posizione
Montagna
Panorama
Vista Aperta
Orientamento
Nord Ovest Sud Est
Lati Liberi
4
Giardino
Privato
Arredi
Semi Arredato
Tipo Soggiorno
Sala da Pranzo
Tipo Cucina
Abitabile
Riscaldamento
Autonomo
Tipo Riscaldam.
Caldaia
Tipo Impianto
Radiatori
Fonte Energetica
GPL
Acqua Calda
Autonoma
Raffrescamento
Non Necessario
Infissi
Legno Doppio Vetro
Serramenti
Discreto
Persiana
Oscurante Legno
Pavim. Giorno
Ceramica
Pavim. Notte
Parquet
Pavim. Cucina
Ceramica
Pavim. Bagno
Ceramica
Appartamenti
Due
Isolamento
Non presente
Isolamento termico
Nessuno
Isolamento acustico
Nessuno

Accessori: Camino

Distanze
Posizione
Centro45 km
Lago34 km
Impianto di risalita52 km
Mare148 km
Parco pubblico19 km
Istruzione
Scuola materna9 km
Scuola elementare4 km
Scuola media9 km
Scuola superiore9 km
Università45 km
Mezzi di trasporto
Aeroporto40 km
Colonnina EV4 km
Fermata metro-bus-tram3 km
Porto130 km
Stazione di servizio3 km
Stazione dei treni45 km
Altri servizi
Banca4 km
Centro culturale4 km
Chiesa1 km
Farmacia4 km
Ospedale9 km
Supermercato4 km
Video
Condividi su

Le informazioni, immagini e planimetrie fornite hanno esclusivamente finalità indicative e non rappresentano elementi vincolanti o contrattuali.
La geolocalizzazione dell'immobile su Google Maps potrebbe risultare imprecisa.
Tutti i diritti sono riservati.

Torna su Cookie preference