Italiano
Riservato

L'appartamentino con il fascino di una villa

Appartamento in vendita • Fanano (Canevare)
FANANO (Alto Appennino Modenese)
Il trilocale che non ti aspetti… ma che ti conquista!
Se stai cercando una soluzione comoda per vivere la montagna, eccola qui: semplice, funzionale e sorprendentemente affascinante. Appena chiudi la porta, ti accorgi che dentro c’è tutto quello che serve… e anche qualcosa in più.

Non è il classico rifugio in stile baita, ma si sposa alla perfezione con l’atmosfera montana. È una proposta diversa, originale, quasi unica!

Questo bilocale è rifinito con la cura e il gusto di una casa di alto livello. Non manca nulla: ambienti ben distribuiti, dettagli curati, e un’atmosfera accogliente che ti fa sentire subito a casa.

E poi… la luce! Sì, lo so, lo dicono tutti, ma qui è vero: la grande finestra sembra aprirsi direttamente sul cielo, e la terrazza condivisa dalle due camere è perfetta per prendere il sole, rilassarsi o semplicemente ammirare il panorama verso ovest, dove i monti si tingono d’oro al tramonto.

Tutto è stato ristrutturato con grande gusto, utilizzando mobili chiari, realizzati su misura per valorizzare ogni angolo. Il risultato? Un ambiente armonioso, elegante e funzionale.

L’unica cosa che manca è il camino… ma niente paura! I caminetti ad alcool sono una chicca: sembrano veri, scaldano l’atmosfera e non fanno fumo. Comodi, belli e perfetti per questo contesto (e senza la legna da portare in casa).

Il residence che ospita il bilocale è immerso nella natura, circondato dalle montagne e a due passi dalle piste da sci. Un piccolo angolo di paradiso dove vivere la montagna con stile, comfort e quel pizzico di poesia che rende ogni giorno speciale.

C'è solo un piccolo lavoretto da fare ma è veramente easy!

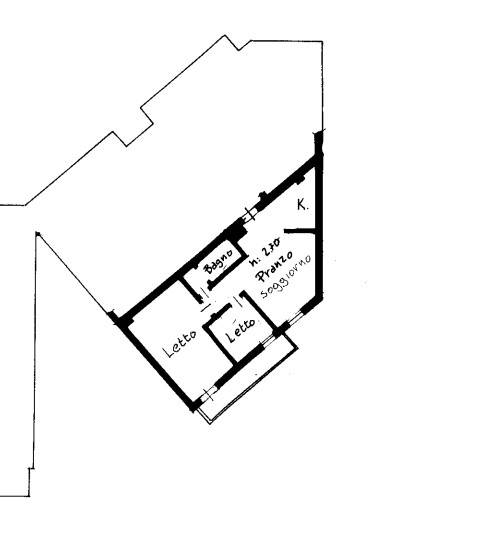
Le informazioni, immagini e planimetrie fornite hanno esclusivamente finalità indicative e non rappresentano elementi vincolanti o contrattuali.
La geolocalizzazione dell'immobile su Google Maps potrebbe risultare imprecisa.
Tutti i diritti sono riservati.
Caratteristiche principali
Codice
1353
Città
Fanano (Canevare)
Categoria
Appartamento
Prezzo
Riservato
Locali
3
Camere
2
Bagni
1
Mq
75
Balconi
1
Mq Balcone
6
Piano
2
Classe energetica
G
Stato Immobile
Buono
Grado
Medio
Posizione
Montagna
Panorama
Vista Giardino
Orientamento
Ovest
Lati Liberi
1
Giardino
Comune
Arredi
Arredato
Tipo Soggiorno
Doppio
Tipo Cucina
Angolo Cottura
Riscaldamento
Centralizzato
Tipo Riscaldam.
Caldaia
Tipo Impianto
Radiatori
Fonte Energetica
GPL
Acqua Calda
Autonoma
Raffrescamento
Non Necessario
Infissi
Legno Doppio Vetro
Serramenti
Ottimo
Persiana
Oscurante Legno
Pavim. Giorno
Parquet
Pavim. Notte
Parquet
Pavim. Cucina
Parquet
Pavim. Bagno
Ceramica
Accesso Disabili
No
Accesso interno disabili
Non accessibile
Isolamento
Non presente
Isolamento termico
Nessuno
Isolamento acustico
Nessuno

Accessori: Ascensore, Doppi Vetri

Distanze
Posizione
Centro8 km
Lago5 km
Impianto di risalita5 km
Mare165 km
Parco pubblico2 km
Istruzione
Scuola materna8 km
Scuola elementare8 km
Scuola media8 km
Scuola superiore35 km
Università65 km
Mezzi di trasporto
Aeroporto65 km
Colonnina EV8 km
Stazione di servizio8 km
Stazione dei treni45 km
Altri servizi
Banca8 km
Centro culturale8 km
Chiesa2 km
Farmacia8 km
Ospedale8 km
Supermercato8 km
Video
Condividi su

Le informazioni, immagini e planimetrie fornite hanno esclusivamente finalità indicative e non rappresentano elementi vincolanti o contrattuali.
La geolocalizzazione dell'immobile su Google Maps potrebbe risultare imprecisa.
Tutti i diritti sono riservati.

Torna su Cookie preference