Italiano
Riservato

La villetta grande

Appartamento in vendita • Lizzano in Belvedere (La Ca')
VIDICIATICO - La Cà (Alto Appennino Bolognese)
Ma che carina che è questa casettina!

Sì, è una villetta a schiera… ma diciamocelo: sembra molto di più!
Sarà il contesto, sarà il progetto, sarà quel giardino pieno di sole e ortensie blu… ma questa casa ha proprio una marcia in più.

Siamo a La Cà, la frazione più “montanara” di Lizzano in Belvedere: la più alta, la più vicina agli impianti di risalita, e quella che profuma di bosco e di escursioni.
Qui c’è tutto quello che ti aspetti da un paesino di montagna: la chiesetta, il bar, il ristorantino, il negozietto che ha sempre un po’ di tutto, il minialimentari con degustazione di prodotti locali… e pure un agriturismo con cavalli per le passeggiate!
Intorno?
Castagni secolari, faggete immense e quelle “steppe di montagna” dove crescono pini mughi, mirtilli e quell’erba leggera che profuma di buono.

Ed è proprio qui che troviamo la casa di Debora. Una casina bianca, al piano superiore di un piccolo fabbricato di quattro abitazioni: due sotto, due sopra. E indovina? Quelle sopra sono le più belle!

La casa ha un accesso carrabile che ti porta in un giardino sempre assolato, con due sdraio bianche che ti aspettano e un muro di ortensie blu che fa da cornice.
Sopra le ortensie, un castagno secolare che regala ombra, pace… e castagne, ovviamente!

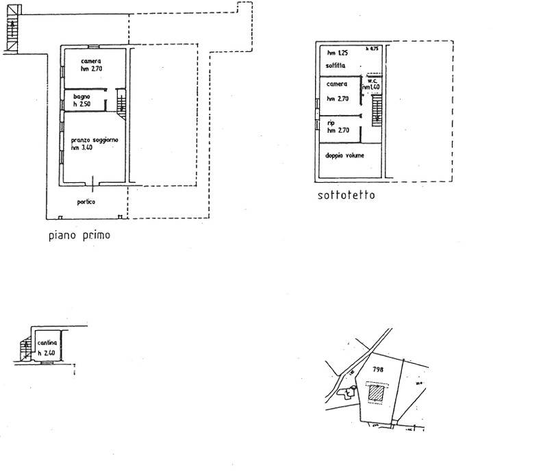
Dal giardino parte un balcone che conduce al portico, e da lì si entra nel soggiorno: doppio volume, tetto mansardato, camino, zona pranzo e cucina attrezzata.
Un corridoio porta alla prima delle due camere, al bagno con doccia e alla scala in legno che sale.

Salgo i gradini e mi affaccio sulla zona giorno da una prospettiva insolita.
Poi trovo due stanze mansardate, un servizio igienico piccolo ma furbo, e un ripostiglio basso ma utile (per le cose che non sai mai dove mettere).

Ah, e se ti stai chiedendo: “Ma un cantinino ce l’ha?”
Certo che sì!
Dal giardino delle ortensie parte una scaletta che porta a un locale interrato con acqua e corrente, perfetto per riporre, lavare, sistemare… o semplicemente per avere un posto dove mettere tutto quello che non vuoi vedere in casa.

Che ne dici? Ti sembra poco?

A me sembra proprio il posto giusto per chi cerca una casa di montagna con carattere, luce, verde e un pizzico di magia.
E poi, diciamolo: quando hai un castagno secolare nel giardino… ti senti già molto meglio!

Le informazioni, immagini e planimetrie fornite hanno esclusivamente finalità indicative e non rappresentano elementi vincolanti o contrattuali.
La geolocalizzazione dell'immobile su Google Maps potrebbe risultare imprecisa.
Tutti i diritti sono riservati.
Caratteristiche principali
Codice
1351
Città
Lizzano in Belvedere (La Ca')
Categoria
Appartamento
Prezzo
Riservato
Locali
4
Camere
2
Bagni
2
Mq
151
Posti auto
2
Mq Giardino
361
mq Terrazzo
33
Classe energetica
In fase di valutazione
Stato Immobile
Buono
Grado
Medio
Posizione
Montagna
Panorama
Vista Aperta
Orientamento
Est Sud Ovest
Lati Liberi
3
Giardino
Privato
Arredi
Arredato
Tipo Soggiorno
Doppio
Tipo Cucina
A Vista
Riscaldamento
Autonomo
Tipo Riscaldam.
Caldaia
Tipo Impianto
Radiatori
Fonte Energetica
GPL
Acqua Calda
Autonoma
Raffrescamento
Non Necessario
Infissi
Legno Doppio Vetro
Serramenti
Ottimo
Persiana
Oscurante Legno
Pavim. Giorno
Ceramica
Pavim. Notte
Ceramica
Pavim. Cucina
Ceramica
Pavim. Bagno
Ceramica
Accesso Disabili
Nessuna Barriera
Accesso interno disabili
Parziale
Appartamenti
Quattro
Isolamento
Non presente
Isolamento termico
Nessuno
Isolamento acustico
Nessuno

Accessori: Camino, Doppi Vetri, Ripostiglio, Zanzariere

Distanze
Posizione
Centro326 m
Lago2,7 km
Impianto di risalita7,7 km
Mare117 km
Parco pubblico3 km
Istruzione
Scuola materna6,3 km
Scuola elementare6,1 km
Scuola media5,9 km
Scuola superiore18,5 km
Università75 km
Mezzi di trasporto
Aeroporto44 km
Colonnina EV358 m
Fermata metro-bus-tram41 m
Stazione di servizio4,5 km
Altri servizi
Banca2,7 km
Centro culturale1,9 km
Chiesa326 m
Farmacia2,7 km
Ospedale19,3 km
Supermercato2,7 km
Condividi su

Le informazioni, immagini e planimetrie fornite hanno esclusivamente finalità indicative e non rappresentano elementi vincolanti o contrattuali.
La geolocalizzazione dell'immobile su Google Maps potrebbe risultare imprecisa.
Tutti i diritti sono riservati.

Torna su Cookie preference