Italiano
520.000 €

Il casale in collina

Villa in vendita • Toano (Cerrè Marabino)
TOANO (Appennino Reggiano)
Ogni tanto capita di incontrare un "essere in montagna" diverso, unico, inaspettato...

Un “essere in montagna” che ha il suo giardino e un terreno attorno casa sorprendentemente pianeggiante.
Un “essere in montagna” che è un meraviglioso casale in sasso, grande e affascinante, immerso in un mare di margherite.
Un “essere in montagna” che, volgendo lo sguardo a destra, mostra il Monte Cusna imbiancato, e a sinistra la maestosa Pietra di Bismantova.

Qui la comodità ha un sapore speciale: il negozio di alimentari è a sette chilometri, così come la prima fermata dell'autobus o la posta, ma in compenso tutto intorno si intrecciano sentieri, stradine e casette sparse, regalando un panorama degno delle più belle cartoline.

La casa di cui ti parlo oggi si trova proprio nel cuore di un campo di margherite. Tre ingressi ti danno il benvenuto a casa.
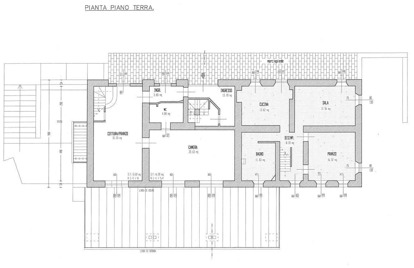
Il primo, attraverso un grande portico con colonne di legno antico, conduce alla zona giorno. Qui si apre un grande salone con camino, salotto e pianoforte, affiancato da una spaziosa cucina con un immenso tavolo dove ritrovarsi. Accanto alla cucina, due suggestive salette con soffitto a volto: una trasformata in un giardino fiorito con due eleganti poltrone immerse nel verde, l’altra un raffinato salottino “da brandy”, di quelli che riportano alla fine dell’Ottocento. Più in là, due camere da letto e un bagno-lavanderia completano il piano.

Dal salotto con camino, una scala porta al piano superiore, dove troviamo:
Una stanza-salotto polivalente, con attacchi per la cucina, una grande camera e un bagno e il secondo ingresso dall'esterno.
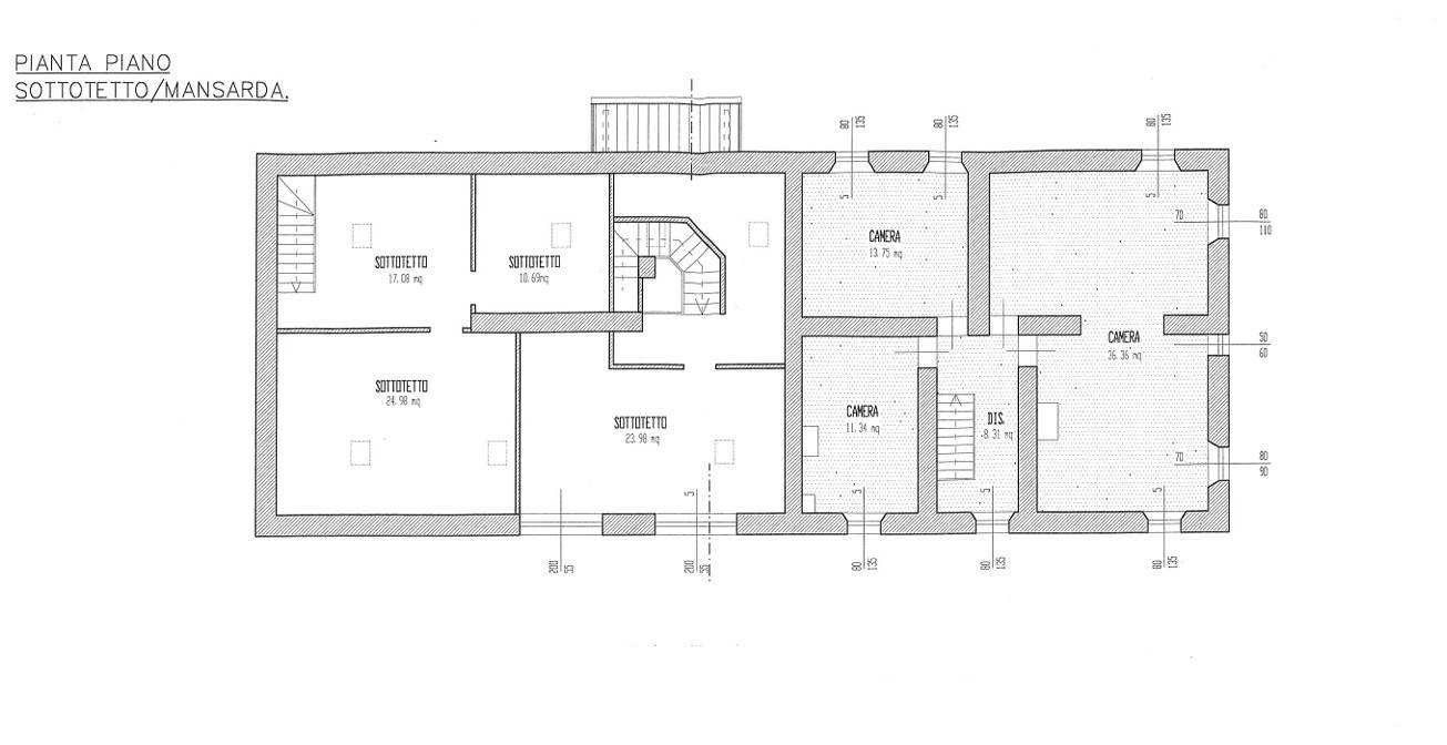
Da qui, una scala a chiocciola conduce alla mansarda, un rifugio affascinante con quattro stanze usate come salottino, due giacigli e un servizio.

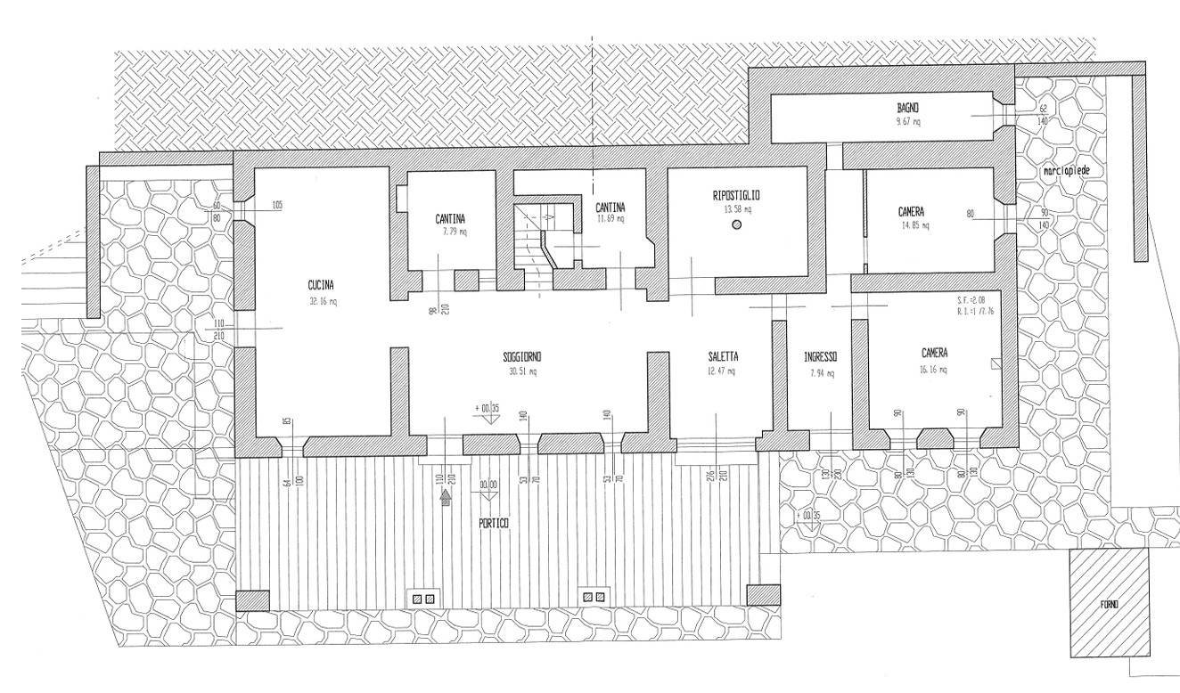
La casa che nasce da un antico rustico in pietra poi ampliato nel tempo, ha anche un secondo ingresso dal piazzale di sopra: aprendo la porta, scoprirai una casa di circa 190 mq ancora da ristrutturare, pronta a trasformarsi in qualsiasi sogno tu voglia realizzare.

E non finisce qui: la proprietà comprende anche un suggestivo forno a legna, un grande garage in legno e quasi 10 ettari di terreno.

Le finiture si armonizzano con l’anima autentica della casa:
pavimenti in cotto, piastrelle colorate, travi e colonne in legno a vista, doppi vetri, solai con soffitto a volta in terracotta e un tetto in legno a vista.

Le foto non rendono giustizia a tanta bellezza. Le ho scattate velocemente, cercando di disturbare il meno possibile... ma tornerò presto, per rimediare e raccontarti ancora di più!

caratteristiche principali
a 7 chilometri dal paese e 22 dagli impianti di sci
in stato più che perfetto (la parte ristrutturata)
su tre piani
ci si arriva con la macchia.
sala, salotto, salottino, cucina abitabile fatta su misura compresa nel prezzo, 5 bagni, sette camere da letto e una cantina,
garage,
forno
riscaldamento a gas
tetto a vista
giardino di circa 9.7ettari

Le informazioni, immagini e planimetrie fornite hanno esclusivamente finalità indicative e non rappresentano elementi vincolanti o contrattuali.
La geolocalizzazione dell'immobile su Google Maps potrebbe risultare imprecisa.
Tutti i diritti sono riservati.
Caratteristiche principali
Codice
1343
Città
Toano (Cerrè Marabino)
Categoria
Villa
Prezzo
520.000 €
Locali
15
Camere
7
Bagni
5
Mq
632
Box
1
Mq Box
58
Posti auto
2
Mq Giardino
97000
Classe energetica
G
Stato Immobile
Buono
Grado
Medio
Posizione
Montagna
Panorama
Vista Monti
Orientamento
Nord Ovest Sud Est
Lati Liberi
4
Giardino
Privato
Arredi
Non Arredato
Tipo Soggiorno
Doppio
Tipo Cucina
Abitabile
Riscaldamento
Autonomo
Tipo Riscaldam.
Caldaia
Tipo Impianto
Radiatori
Fonte Energetica
Metano
Acqua Calda
Autonoma
Raffrescamento
Non Necessario
Infissi
Legno Doppio Vetro
Serramenti
Ottimo
Persiana
Oscurante Legno
Pavim. Giorno
Cotto
Pavim. Notte
Ceramica
Pavim. Cucina
Ceramica
Pavim. Bagno
Ceramica
Accesso interno disabili
Parziale
Appartamenti
Due
Isolamento
Non presente
Isolamento termico
Nessuno
Isolamento acustico
Nessuno

Accessori: Camino, Doppi Vetri, Lavanderia

Distanze
Posizione
Centro2 km
Lago10 km
Impianto di risalita22 km
Mare101 km
Parco pubblico7 km
Istruzione
Scuola materna7 km
Scuola elementare7 km
Scuola media7 km
Scuola superiore17 km
Università61 km
Mezzi di trasporto
Aeroporto93 km
Colonnina EV7 km
Fermata metro-bus-tram7 km
Porto101 km
Stazione di servizio7 km
Stazione dei treni42 km
Altri servizi
Banca7 km
Centro culturale7 km
Chiesa2 km
Farmacia7 km
Ospedale17 km
Supermercato7 km
Video
Condividi su

Le informazioni, immagini e planimetrie fornite hanno esclusivamente finalità indicative e non rappresentano elementi vincolanti o contrattuali.
La geolocalizzazione dell'immobile su Google Maps potrebbe risultare imprecisa.
Tutti i diritti sono riservati.

Torna su Cookie preference